Architectural
Draftsperson

[INTRO]

I turn complex ideas into clear, buildable drawings and translating design intent into documentation teams can trust from concept through final as-built detail.

Architectural concrete facade
PITCHAYA NORKHAM
Pitchaya Norkham

Architectural Draftsperson with over two years of experience in residential and hospitality projects, creating detailed drawings and construction documentation from concept through to final as-builts. Skilled in Archicad, Revit, and AutoCAD, with a strong focus on clear documentation, coordination, and design solutions that balance aesthetics, compliance, and buildability. Experienced in collaborating with architects, engineers, and contractors to resolve on-site issues and keep design intent practical, accurate, and construction-ready.

Education

Bachelor of Architecture

Naresuan University, Thailand

2016 – 2021
Architecture Documentation VETASSESS Positive
  • Completed coursework in architectural drafting, construction technology, and building regulations.
  • Developed technical expertise in AutoCAD, Revit, SketchUp for architectural documentation.

Projects

RRSB House thumbnail

RRSB
HOUSE

Residential / Construction Documentation

Sala Khaoyai Resort thumbnail

SALA KHAOYAI
RESORT

Hospitality / Architectural Drafting

LPP Office thumbnail

LPP
OFFICE

Commercial / Interior Documentation

Baan Kun Kanit thumbnail

BAAN KUN
KANIT

Residential / Drawings + As-Builts

RRSB House

Full construction documentation for a contemporary residential project, from detailed site plans through to as-built drawings.

RRSB House — Aerial View
RRSB House — Site Plan
RRSB House — Elevations
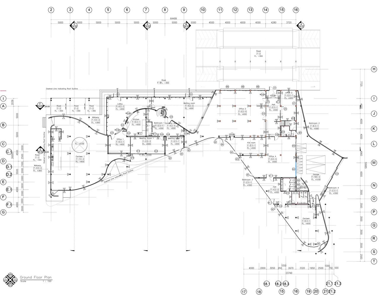
RRSB House — Floor Plans
RRSB House — Sections
RRSB House — Exterior View RRSB House — Front View
RRSB House — Deck Detail

Scope of Work

  • Design Adjustments — Collaborated with the construction team to resolve design issues and adapt drawings to site conditions.
  • Revised Drawings — Updated construction and as-built drawings to reflect changes in materials, dimensions, and layout.
  • Material Coordination — Verified and approved materials in collaboration with architects and construction team.
  • Technical Drawings — Produced detailed site plans, elevation, sections, and construction details.
  • Project Documentation — Maintained and updated all project documents to track revisions.

Sala Khaoyai Resort

Hospitality resort on a challenging sloped site — topographical adaptations and gradient-conscious construction documentation.

Sala Khaoyai Resort — Aerial View
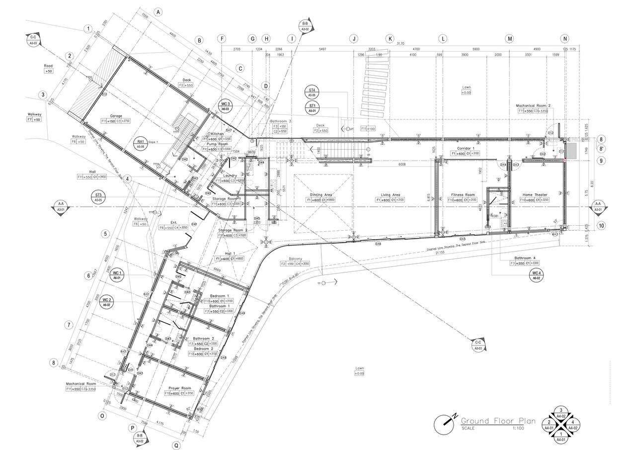
Sala Khaoyai — Ground Floor Plan
Sala Khaoyai — Bathroom Detail
Sala Khaoyai — Door Detail
Sala Khaoyai — Elevations
Sala Khaoyai — Section
Sala Khaoyai — Terrace Lounge Sala Khaoyai — Garden Pavilion Sala Khaoyai — Pool View
Sala Khaoyai — Spiral Staircase

Scope of Work

  • Architectural Drafting & Coordination — Addressed slope and gradient challenges to revise the design for construction feasibility.
  • Revised Drawings — Updated construction and as-built drawings to account for topography and structural adjustments.
  • Material Coordination — Coordinated with designers and construction teams for unique site conditions.
  • Technical Drawings — Produced detailed site plans, elevations, sections, and construction details with gradient considerations.
  • Project Documentation — Kept all documentation updated with changes and as-built drawings to reflect design evolution.

LPP Office

Commercial office building with a signature geometric brick feature wall — requiring precise pattern calculation and construction coordination.

LPP Office — Completed Building
LPP Office — Ground Floor Plan Ground Floor Plan 1:150
LPP Office — Elevation Elevation 1:100
LPP Office — Section
LPP Office — Under Construction LPP Office — Brick Facade Detail LPP Office — Completed Facade
LPP Office — Entrance

Scope of Work

  • Architectural Drafting & Coordination — Produced construction and as-built drawings ensuring accuracy in structural and functional layouts.
  • Design Adjustments — Worked with the construction team to resolve site challenges and refine technical details.
  • Artistic Brick Feature — Calculated and designed geometric brick patterns, ensuring precise spacing for aesthetic consistency.
  • Construction Support — Liaised with builders to ensure all elements, including the brickwork, were executed as designed.
  • Owner Presentations — Delivered updated construction and as-built drawings to the owner for reference and supplier coordination.

Baan Kun Kanit

Custom residential project developed in close collaboration with an architect-owner — multiple design iterations and comprehensive documentation.

Baan Kun Kanit — Completed House
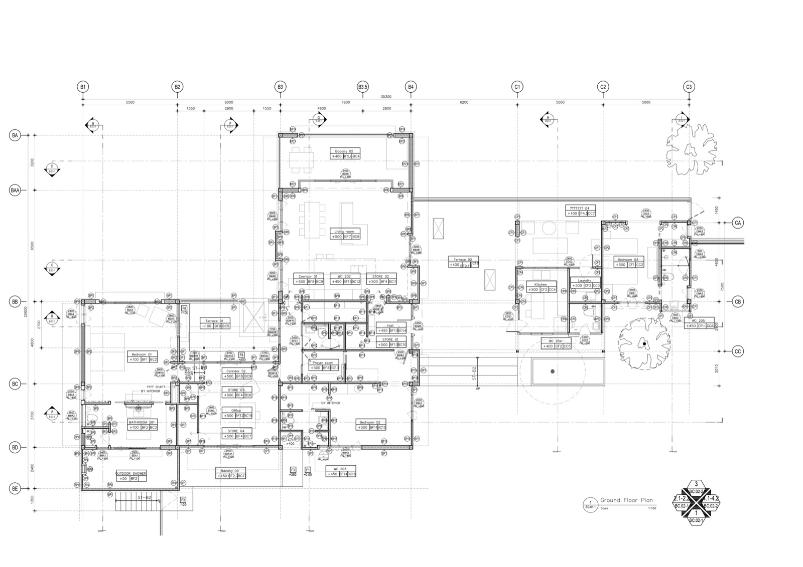
Baan Kun Kanit — Ground Floor Plan
Baan Kun Kanit — Elevations
Baan Kun Kanit — Section
Baan Kun Kanit — Aerial Construction Baan Kun Kanit — Top-down Aerial
Baan Kun Kanit — Construction Detail

Scope of Work

  • Client Collaboration — Worked closely with the architect-owner to develop a tailored design meeting their vision and technical requirements.
  • Concept Development & Refinement — Created multiple design iterations, refining details based on professional feedback.
  • Architectural Drafting — Produced all necessary construction and as-built drawings ensuring compliance with design standards.
  • Technical Coordination — Assisted in resolving design challenges and integrating additional architectural elements.
  • Material Coordination — Worked with the owner and construction team to confirm materials meeting design and construction standards.
  • Project Documentation — Managed and updated technical documents, tracking all design revisions.
Architectural rendering background

Let's Work
Together

Available for opportunities worldwide. Open to architectural drafting, construction documentation, and BIM projects.